Weld h beam steel structural storage warehouse
Project overview
The steel structural storage warehouse designed and manufactured by baofeng company has completed the installation on September 2019.
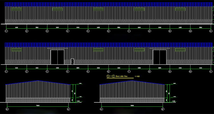
The storage warehouse built in Ethiopia, the entire metal building is 60 meters long, 18 meters wide, 6 meters high, and the bick wall is 1.5 meter. The steel storage warehouse is a single-span, the wall and roof panel adopted the single steel sheets, and the door is sandwich panel sliding doors.
The width of 18m without center column can meet the storage of any cargo, and the door size is is 4m (width) x 4.5m (height), it is convenient for forklifts to handle the load and discharge. Besides, there is enough space to design the office inside the warehouse, which convenient management of goods go in and out.
The customer choosed to use the steel structure building for the copper mine storage warehouse. The primary consideration is that the prefabricated steel structure building has the advantages of fast installation and economical cost.
When starting to communicate with customers about this project. The key factor need to be confirmed is the dimension of the whole building, including length, width, and height.
Then, we also calculated the wind load and snow load according to the local climate to ensure that the all structure is sturdy and durable.
The service life is more than 50 years. Therefore, we first need to consider safety for each building, and then the economy.
In the end, our products and services won praises from customers, and customers expressed that they have the opportunity to continue cooperation in the future.
Categories
New Products
Modern design steel frame building prefabricated construction steel structure material warehouse for sale Read More
Large span weld H beam prefabricated steel structure workshop made in China Read More
Prefabricated light steel structure storage warehouse buildings made in China Read More
Prefabricated luxury living expandable container house Read More
Customized Steel Structure Two-story chicken coop exported to the Philippines Read More